Στο πλαίσιο της στρατηγικής του για τη δημιουργία πολιτιστικών σημείων αναφοράς στο ιστορικό κέντρο της Αθήνας, το Υπουργείο Πολιτισμού προχωρά στην αποκατάσταση του κτιρίου στην οδό Τριπόδων 32, γνωστού ως «οικία Κοκοβίκου» στην Πλάκα, και στη μετατροπή του σε χώρο πολιτιστικών δράσεων. Το ακίνητο, το οποίο σήμερα βρίσκεται σε ερειπωμένη κατάσταση, έχει χαρακτηριστεί ιστορικό διατηρητέο μνημείο μαζί με τον περιβάλλοντα χώρο του, καθώς αποτελεί χαρακτηριστικό δείγμα αθηναϊκής κατοικίας. Η διάσωσή του συμβάλλει ουσιαστικά στη διαφύλαξη της ιστορίας της ελληνικής αρχιτεκτονικής. Οι μελέτες αποκατάστασης του κτιρίου και του περιβάλλοντός του χρηματοδοτήθηκαν από το Υπουργείο, ενώ το έργο εντάχθηκε στο Περιφερειακό Επιχειρησιακό Πρόγραμμα Αττικής – ΕΣΠΑ 2021-2027, με προϋπολογισμό 1.700.000 ευρώ.
Τι δήλωσε η Λίνα Μενδώνη;

Η Υπουργός Πολιτισμού, Λίνα Μενδώνη, τόνισε ότι το έργο εντάσσεται σε ένα ευρύτερο πρόγραμμα ανάδειξης δημόσιων κτηρίων της Πλάκας, περιοχής που αποτελεί την πλέον χαρακτηριστική εικόνα του ιστορικού κέντρου. Η «οικία Κοκοβίκου», γνωστή στο κοινό από την ταινία «Η δε γυνή να φοβήται τον άνδρα» ως το σπίτι του Αντωνάκη και της Ελενίτσας, θα αποκατασταθεί και θα αποκτήσει νέα χρήση ως χώρος προβολής ταινιών του ελληνικού κινηματογράφου. Όπως σημείωσε η Υπουργός, η διάσωση και επανάχρηση ενός σπάνιου δείγματος αθηναϊκής κατοικίας της εποχής, με την ανασύσταση της αυλής και του συνοδού κτίσματος, ενισχύει τη ζωντανή σχέση του μνημείου με τη σύγχρονη πόλη και αναβαθμίζει την εικόνα της περιοχής. Ο στόχος είναι διπλός: αφενός η διατήρηση του μοναδικού ιστορικού χαρακτήρα της Πλάκας και αφετέρου η ενίσχυση της τουριστικής δυναμικής της Αθήνας μέσα από νέους πολιτιστικούς προορισμούς. Η «οικία Κοκοβίκου» εντάσσεται σε ένα ευρύτερο δίκτυο πολιτιστικών υποδομών που διαμορφώνονται στην Πλάκα, μαζί με την Οικία Κωλέττη, το Σπίτι του Ελύτη, το μελλοντικό Μουσείο Καρόλου Κουν στη Διοσκούρων, καθώς και την οικία Παλαμά στην Περιάνδρου.
Πώς ακριβώς αναμένεται να λάβει η χώρα η αποκατάσταση;


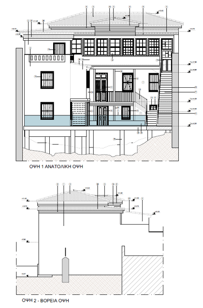
Η εγκεκριμένη μελέτη προβλέπει την αποκατάσταση της αρχικής μορφής του κτιρίου, την ανάδειξη του μνημειακού χαρακτήρα του και την εξασφάλιση πλήρους προσβασιμότητας. Θα πραγματοποιηθούν εργασίες στο κέλυφος, ανακατασκευή του συνοδού διώροφου κτίσματος και ανασύνθεση της παραδοσιακής αθηναϊκής αυλής, παράλληλα με τη διαμόρφωση του μετώπου της οδού Τριπόδων. Επιπλέον, θα συντηρηθούν τα αρχαία αρχιτεκτονικά κατάλοιπα που έχουν βρεθεί στο εσωτερικό και στον αύλειο χώρο, με πρόβλεψη για ορατή και απρόσκοπτη θέασή τους.

Το ακίνητο, συνολικής έκτασης 266 τ.μ., είναι τριώροφο με ξύλινο χαγιάτι σε όλα τα επίπεδα, τυπικό δείγμα της πρώιμης οθωνικής περιόδου. Ανήκε σε συγκρότημα με συνοδευτικά κτίσματα και εσωτερική αυλή, οικιστικό πρότυπο που κυριάρχησε στην Πλάκα επί Οθωμανικής περιόδου. Η παρουσία του τεκμηριώνεται ήδη από το 1836-1837. Στα χρόνια που ακολούθησαν υπέστη σημαντικές αλλοιώσεις, όπως κατεδαφίσεις συνοδών κτισμάτων και τοίχων, ανασκαφές σχεδόν σε όλο το οικόπεδο, καθώς και εκτεταμένες επισκευές. Σήμερα η μορφή του διασώζεται σε αρχειακό υλικό και τεκμήρια εποχής, γεγονός που καθιστά την αποκατάστασή του ιδιαίτερα σημαντική.

Η πρωτοβουλία αυτή δεν αφορά μόνο τη διάσωση ενός ιστορικού κτιρίου, αλλά και την αναζωογόνηση της τοπικής κοινότητας. Η μετατροπή της «οικίας Κοκοβίκου» σε ενεργό πολιτιστικό χώρο προσφέρει νέες ευκαιρίες για εκπαίδευση, ψυχαγωγία και τουρισμό, ενισχύοντας την ταυτότητα της Πλάκας ως ζωντανού ιστορικού πυρήνα. Με αυτόν τον τρόπο, το παρελθόν συναντά το παρόν και δημιουργούνται οι προϋποθέσεις για μια βιώσιμη πολιτιστική ανάπτυξη στο κέντρο της Αθήνας.
